Imagine 50

VIDEO ||| Super pret - De renovat cum iti place | 6 camere | Curte & Parcare

ID: P228846 Bucuresti, Sisesti 13
286.990€
Camere
6
Suprafata utila
210 mp
Bai
4
Front stradal
6.80 m
An constructie
2007
Descriere
Va propunem spre vanzare o casa cu potential, situata in zona Sisesti – Sector 1, Bucuresti. Imobilul, construit in anul 2007, se afla intr-un areal linistit, conectat la toate utilitatile publice si cu acces facil din strada principala.

📽️ La cerere va transmitem VIDEO din cadrul proprietatii - esential pentru a intelege spatiile, compartimentarea si potentialul casei.

Cu regim de inaltime P+1+M, vila ofera 6 camere spatioase si o structura functionala, perfecta pentru a fi adaptata dupa preferintele proprii, fie ca locuinta personala mare, fie ca investitie/birouri sau locuinta familiala.
Curtea libera de circa 80 mp este impartita intre zona din fata si cea din spate (cu acces si din living si din bucatarie).
La exterior, locuinta beneficiaza de 2 locuri de parcare, unul in curtea din fata si unul adiacent casei.

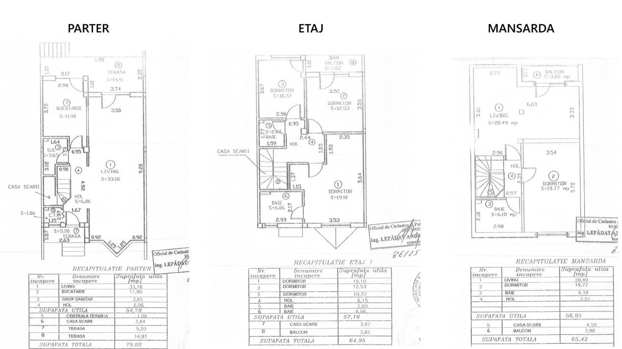
🏠 Masoara la interior 182.36 mp, la care se adauga cele 2 balcoane si terasa de la parter, asadar:
Parter: Living generos de 33 mp, bucatarie inchisa de 12 mp, baie de serviciu cu dus, camera tehnica si acces direct spre terasa si curte
Etaj: 3 dormitoare, dintre care unul cu baie en-suite si geam, plus o a doua baie cu cabina de dus
Mansarda: 2 dormitoare, baie cu cada si balcon.

🔧 Dotari si detalii tehnice:
- Centrala termica proprie si calorifere;
- Finisaje simple, casa fiind nemobilata si necesitand renovare, ofera astfel o panza alba pentru design personalizat;
- Toate utilitatile sunt racordate: curent, apa, canalizare si gaz.

📍 Documentatia este pregatita pentru vanzare.

📞 Pentru detalii suplimentare, acces la video si programarea unei vizionari, va invitam sa ne contactati.
Caracteristici
  • ID:P228846
  • Nr. camere:6
  • Nr. dormitoare:5
  • S. utila:210.00 mp
  • S. construita:250.00 mp
  • S. teren:172.00 mp
  • Nr. bucatarii:1
  • Nr. bai:4
  • Nr. balcoane:2
  • Nr. parcari:2
  • Front stradal:6.80 m
  • Nr. fronturi:1
  • An constructie:2007
  • Structura rezistenta:Beton
  • Regim inaltime:P+1+M
  • Orientare:Nord-Sud
  • Clasa energetica:B
  • Consum specific:189.1
  • Indice emisii:45.52
  • C. energ. reg.:1.9
Specificatii
Curent
Apa
Canalizare
Gaz
Centrala proprie
Calorifere
Aer conditionat
Izolatie Exterior
Vopsea lavabila
Faianta
Parchet
Gresie
Mocheta
Ferestre PVC
Usa intrare Metal
Usa interior Celulare
Spatiu depozitare
Dressing
Dependinte
Apometre
Contor gaz
Nemobilat
Gradina
Localizare
Sabina Abrudian
Senior Real Estate Agent
Esti interesat de aceasta proprietate ?